
Karácsonyi szünet 2025. január 6-ig
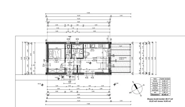
bruttó 51 m² | 1 szoba + nappali | 1 fürdő |
|---|---|---|
Nemrég vásároltatok egy telket és szeretnétek rá egy modern, alacsony fenntartási költséggel rendelkező nyaralót? Költségbarát alternatívát kerestek a kertes házas élet megvalósításához?
Az A. típusú egyszobás családi mobilház kiváló megoldást kínál mindkét esetben, hiszen ez az otthon a kisebb méretének és a kész koncepciótervnek hála gyorsan, pontosan az ütemterv mentén épül fel.
Ez a téliesített mobilház ráadásul könnyedén bővíthető, és igény esetén akár át is telepíthető egyik helyről a másikra, így rugalmas megoldást kínálva.
445.000 Ft nettó / m²
+5% Áfa (ha családi háznak használják majd)
az ár tartalmazza a pontalapot és telepítés díját
Gipszkarton tűzálló az összes és Impregnált vízálló a vizes blokkokban.
Hőtükör fólia,
Impregnált fenyő vázszerkezet
Vázszerkezeten belül 15 cm kőzetgyapot szigetelés
Pára áteresztő fólia
Kívül a homlokzaton OSB lap borítás
10 cm vastag Nikecell borítás
Dryvit rendszerű nemes vakolatozás
A mobilház aljzat rétegrendje annyiban különbözik, hogy 20 cm Kőzetgyapot szigeteléssel láttuk el.
Egy 50 nm-es, 2 hálószobás mobulházat 1,5 hét alatt tudunk elkészíteni víz- és villanyszereléssel együtt.
Az építkezés zárt csarnokunkban történik, így időjárástól függetlenül tudunk dolgozni, így tudjuk garantálni szerződésben is a rövid, akár 1,5 hónapos határidőt.
Házgyárunkban rendelkezésre áll minden alapanyag és szerszám, így nem fordulhat elő, hogy drágább lesz, mint amivel szerződéskötéskor kalkuláltunk.
Olyan extra költségek sem merülhetnek fel, mint az építőmunkások elszállásolása vagy bejárása, így egy hagyományos építkezéshez képest alacsonyabbak a költségek.
A téliesített mobilházak gyártásához korszerű anyagokat és technológiákat használunk, amelyek javítják az épületek minőségét, tartósságát és energiatakarékosságát.
Házgyárunkban a házak építési folyamat átlátható, műszaki vezetőnk által felügyelt, így biztosítva a magas színvonalú kivitelezést.
A szó elszáll… Ígéreteinket megtartjuk, így bátran rögzítjük szerződésben is.
Több száz ház és terasz átadása után kellő tapasztalattal és rutinnal állunk készen a Te Álomházad megépítésére is.
Kipróbált, megbízható saját csapattal dolgozunk, így nem kell attól tartanod, hogy az építkezés alatt a szakemberek egyik napról a másikra eltűnnek.
Házgyár csarnokunk és terasz bemutató udvarunk is itt lesz 10 év múlva is.
Látogass el hozzánk és nézd meg a téliesített mobilházakat a komáromi házgyárunkba vagy kecskeméti bemutató udvarunkba.
A téliesített mobilházak a tévhitekkel ellentétben NEM csak nyáron használható. Sőt, pont annyira alkalmas téli hétvégi kuckónak, mint nyaralónak!
Ezek a házak ugyanis kifejezetten kellemes hőérzetet biztosítanak egész évben, ami az Álomház-Álomterasz által gondosan megtervezett fal-rétegrendnek és a kiváló minőségű szigetelőanyagoknak köszönhető.
Ráadásul az időtállósága miatt sem kell aggódnunk, hiszen a téliesített mobilház rendkívül magas élettartammal rendelkezik, így tökéletesen alkalmas otthonként vagy hosszabb ott tartózkodásra is.
Saját Házgyárunkban télen-nyáron zavartalanul folyik a mobilházak gyártása, így ha ránk bízod az új otthonod elkészítését, akkor biztos lehetsz benne, hogy a projekt gyorsan és zökkenőmentesen valósul meg.
A modulok egy standardizált folyamat során készülnek, amely lehetővé teszi a határidők pontos betartását és a minőség folyamatos kontrollálását. A precíz gyártási eljárásnak köszönhetően a moduláris elemek kiemelkedő pontossággal illeszkednek egymáshoz, és már az előállítás során ellátjuk őket a szükséges szigeteléssel. Így a helyszíni munka minimálisra csökkenthető, amivel nem csak időt, de pénzt is megtakarítasz.
Az elemek legyártását követően csapatunk a helyszínre szállítja azokat, ahol megkezdődik a telepítés. Ez egy olyan kisebb ház esetén, mint amilyen az A. típusház is, általában csak 1 napot vesz igénybe.
A dráguló energiaárak miatt egyre nagyobb fókuszt kap az energiahatékonyság, és így az alacsony fenntartási költség is. A prémium mobilházak esetén azonban a rezsiszámla sem fog gondot okozni, hiszen már a tervezési fázisban kiemelt figyelmet fordítunk az energiatakarékos megoldásokra.
A korszerű hőszigetelési technológiák, a három rétegű nyílászárók, valamint az általunk alkalmazott speciális fal-rétegrend mind hozzájárulnak ahhoz, hogy a ház fenntartható legyen. Ez pedig hosszútávon jelentős megtakarítást eredményezhet a fűtési és hűtési költségek terén.
Az A. típusház költségbarát és modern alternatíva, legyen szó akár egy hétvégi ház, egy kis szépségszalon vagy egy új, kompakt otthon megvalósításáról.
Praktikus kialakításának köszönhetően komfortos életteret biztosít, hiszen egy tágas amerikai konyhás nappalival és egy optimális méretű hálószobával is rendelkezik. Igény esetén ráadásul terasszal vagy télikerttel és kiegészíthető, amely még otthonosabbá teszi ezt a házat.
Kis méretéből adódóan az A. típusú téliesített mobilház viszonylag egyszerűen telepíthető át egyik helyről a másikra, amely kiváló lehetőséget kínál azok számára, akik rugalmas megoldást keresnek az új otthon vagy nyaraló megvalósításához.
Ez a rugalmasság biztosítja, hogy az új otthonotok hosszú távon is kielégítse az igényeiteket, anélkül hogy teljesen új ingatlanra lenne szükségetek.
A házat ráadásul egy szuper terasszal vagy télikerttel is kiegészíthetitek, így garantáltan megnövekszik majd a friss levegőn töltött órák száma! Ha egy modern, energiahatékony és költségbarát megoldást kerestek, akkor a D. típusú családi ház kiváló választás számotokra!
| Süti | Időtartam | Leírás |
|---|---|---|
| cookielawinfo-checkbox-analytics | 11 months | This cookie is set by GDPR Cookie Consent plugin. The cookie is used to store the user consent for the cookies in the category "Analytics". |
| cookielawinfo-checkbox-functional | 11 months | The cookie is set by GDPR cookie consent to record the user consent for the cookies in the category "Functional". |
| cookielawinfo-checkbox-necessary | 11 months | This cookie is set by GDPR Cookie Consent plugin. The cookies is used to store the user consent for the cookies in the category "Necessary". |
| cookielawinfo-checkbox-others | 11 months | This cookie is set by GDPR Cookie Consent plugin. The cookie is used to store the user consent for the cookies in the category "Other. |
| cookielawinfo-checkbox-performance | 11 months | This cookie is set by GDPR Cookie Consent plugin. The cookie is used to store the user consent for the cookies in the category "Performance". |
| viewed_cookie_policy | 11 months | The cookie is set by the GDPR Cookie Consent plugin and is used to store whether or not user has consented to the use of cookies. It does not store any personal data. |