
Karácsonyi szünet 2025. január 6-ig
bruttó 60 m² | 2 szoba + nappali | 1 fürdő |
|---|---|---|
A B. típusú családi modulház minden olyan tulajdonsággal rendelkezik, amely egy modern, komfortos és fenntartható otthonhoz szükséges. Itt zavartalanul élvezhetitek majd a közös pillanatokat, anélkül, hogy előtte meg kéne küzdenetek a hagyományos építkezés okozta kihívásokkal.
A ház kívül-belül kiváló minőségű anyagokból, gyorsan és költséghatékonyan készül el, ezáltal hosszú időn keresztül fogja problémamentesen szolgálni az igényeiteket. Modern megjelenésével bárhol megállja a helyét, legyen az akár egy városi környezet, akár egy üdülőövezet.
Neked már csak a ház belsőjének stílusáról kell gondoskodni: belső festés és burkolás, szaniterek, bútorozás.
445.000 Ft nettó / m²
+5% Áfa (ha családi háznak használják majd)
az ár tartalmazza a pontalapot és telepítés díját
Gipszkarton tűzálló az összes és Impregnált vízálló a vizes blokkokban.
Hőtükör fólia,
Impregnált fenyő vázszerkezet
Vázszerkezeten belül 15 cm kőzetgyapot szigetelés
Pára áteresztő fólia
Kívül a homlokzaton OSB lap borítás
10 cm vastag Nikecell borítás
Dryvit rendszerű nemes vakolatozás
A ház aljzat rétegrendje annyiban különbözik, hogy 20 cm Kőzetgyapot szigeteléssel láttuk el.
Új élet a természet lágy ölén? Az első reggeli kávé a zöldellő kertedben? A B. típusház nem csak egy új otthon lesz számotokra, hanem egy új életstílus is!
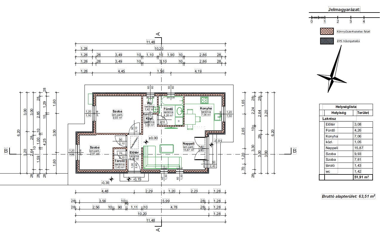
Ez egy rendkívül kedvelt könnyűszerkezetes háztípus, hiszen rengeteg lehetőséget hordoz magában. Ennek az otthonos háznak az alapterülete 60 négyzetméter, amely tökéletes teret biztosít egy pár vagy egy kisebb család számára.
A Bramac tetőcserép és a fa hatású berakások egy modern, mégis hagyományos otthon érzetét keltik, így ez a ház tökéletesen illeszkedik bármilyen környezethez.
A tervezés során külön figyelmet fordítottunk a praktikus és kényelmes belső terek kialakítására. Ideális méretének és elrendezésének hála ez a típusház optimális helykihasználást tesz lehetővé.
A ház két hálószobával, egy tágas nappalival, egy részben elszeparált konyhával, fürdőszobával és külön WC-vel rendelkezik. Emellett egy külön helyiség szolgál a háztartási gépek, a barkács felszerelés vagy más fontos eszközök tárolására.
A B. típusház akkor is kiváló választás, ha egy kényelmes, tágas nyaralót vagy hétvégi házat szeretnétek a telketekre. Mivel ez esetben lakhatási engedély sem kell, ezért a típusház megépítésével és engedélyezésével kapcsolatos teendők pikk-pakk meglesznek, nektek már csak kiélveznetek kell a szép új ház nyújtotta örömöket.
Régóta gondolkozol egy jól profitáló szálláshely kialakításán? Megvan a tökéletes telek, de még nincs rajta ház? A B. típusház kiváló lehetőséget kínál a megvalósításhoz!
A leendő vendégeid ebben a házban komfortosan élvezhetik ki a nyaralás minden pillanatát, legyen az akár a téli, akár a nyári időszak! Remek elrendezésének hála akár 6 vendég befogadására is alkalmas, így akár nagyobb családoknak vagy baráti társaságoknak is kiadhatod majd.
A hagyományos építkezés drága, hosszadalmas és rendkívül stresszes folyamat. Egy családi ház megépítése akár évekbe is telhet, nem beszélve azokról az óriási, nem várt kiadásokról, amelyekkel az építkezés során folyamatosan szembesülhetünk.
A típusházak számos előnyös tulajdonsággal rendelkeznek a hagyományos házakkal szemben. Ráadásul a tévhitekkel ellentétben az időtállóságuk miatt sem kell aggódnunk.
A típusházak esetén gyors tervezésre és kivitelezésre számíthatsz, amelyet az Álomterasz-Álomháznál a saját Házgyár és a profi, kiforrott folyamatok tesznek lehetővé.
Az előre meghatározott alaprajzok és műszaki megoldások alapján a kivitelezés során kevesebb hibalehetőség adódik, így a projekt sikeres megvalósítása garantált. Ráadásul biztos lehetsz benne, hogy a könnyűszerkezetes ház időben, a szerződésben foglaltak szerint készül el.
A típusházak elemeit precízen legyártjuk, majd profi csapatunk a helyszínen összeszereli azokat. Ennek köszönhetően az építési és a telepítési idő jelentősen lerövidül, te pedig hamarabb beköltözhetsz álmaid otthonába.
Az általunk kivitelezett típusházak energiatakarékos fenntartást tesznek lehetővé, hiszen olyan modern szigetelőanyagokkal vannak ellátva, amelyek segítenek fenntartani a benti hőmérsékletet.
Amellett, hogy így alacsonyabb rezsiköltségre számíthatsz, a hőérzeted miatt sem kell aggódnod. A típusházak télen-nyáron kellemes ott tartózkodást tesznek lehetővé, ráadásul olyan modern fűtési-hűtési megoldások is integrálhatóak, mint például a hőszivattyú.
A velünk történő építkezés esetén az engedélyeztetési folyamat is egyszerűbb és gyorsabb lehet. A típusházak tervei megfelelnek a vonatkozó építési szabályoknak és előírásoknak, így már csak az adott helyrajzi számra kell adaptálni őket. Ezzel pedig rengeteg időt és pénzt spórolhatsz.
Természetes, ha lakóingatlanként szeretnénk használni a házat, akkor állandó lakhatási engedélyre szükségünk lesz.
A típusházakat úgy alkottuk meg, hogy azok ne csak esztétikusak és kényelmesek, hanem tartósak is legyenek. Tudjuk ugyanis, hogy egy otthon egy életre készül, ezért ki kell állnia az idő próbáját.
Noha ez egy könnyűszerkezetes háztípus, mégis olyan kiváló minőségű anyagokból van felépítve, amelyek ellenállnak a szélsőséges időjárási körülményeknek, a fagynak, a rozsdának, a penésznek vagy a különböző fizikai behatásoknak.
Az általunk kivitelezett családi ház ezáltal hosszú időn keresztül szolgálja majd ki problémamentesen az igényeiteket!
Ha elkészült a ház, akkor neked már csak egy dolgod lesz: az igényeid szerint kialakítani a belső teret! Ez egy izgalmas folyamat, és talán az egyetlen, amelyet valamennyien szívesen végzünk el az építkezés során. A falak, a belső burkolatok színe és típusa, valamint a szaniterek és a különböző bútorok és berendezési tárgyak mind-mind az igényeid szerint választhatóak ki és rendezhetőek el.
Egyedi méretet és elrendezést szeretnél? Akkor számodra a prémium modulház kiváló megoldást nyújt majd, hiszen itt te határozhatod meg az összes részletet: ezáltal az alapterületet, a ház belső elrendezését és természetesen a külső megjelenést és az anyagokat is.
Mindemellett pedig lehetőséged van ezeket a házakat bővíteni is, így ha bővül a család, akkor bővülhet a ház is! További modulok hozzáépítésével a bővítés egyszerűen és gyorsan valósulhat meg.
Mindemellett a prémium modulházak mindegyike megvalósítható terasz vagy télikert kiegészítéssel is, így teljes mértékben egy modern és otthonos ház komfortját élvezheted a könnyűszerkezetes házzal.
Egy 50 nm-es, 2 hálószobás mobulházat 1,5 hét alatt tudunk elkészíteni víz- és villanyszereléssel együtt.
Az építkezés zárt csarnokunkban történik, így időjárástól függetlenül tudunk dolgozni, így tudjuk garantálni szerződésben is a rövid, akár 1,5 hónapos határidőt.
Házgyárunkban rendelkezésre áll minden alapanyag és szerszám, így nem fordulhat elő, hogy drágább lesz, mint amivel szerződéskötéskor kalkuláltunk.
Olyan extra költségek sem merülhetnek fel, mint az építőmunkások elszállásolása vagy bejárása, így egy hagyományos építkezéshez képest alacsonyabbak a költségek.
A modulházak gyártásához korszerű anyagokat és technológiákat használunk, amelyek javítják az épületek minőségét, tartósságát és energiatakarékosságát.
Házgyárunkban a házak építési folyamat átlátható, műszaki vezetőnk által felügyelt, így biztosítva a magas színvonalú kivitelezést.
A szó elszáll… Ígéreteinket megtartjuk, így bátran rögzítjük szerződésben is.
Több száz ház és terasz átadása után kellő tapasztalattal és rutinnal állunk készen a Te Álomházad megépítésére is.
Kipróbált, megbízható saját csapattal dolgozunk, így nem kell attól tartanod, hogy az építkezés alatt a szakemberek egyik napról a másikra eltűnnek.
Házgyár csarnokunk és terasz bemutató udvarunk is itt lesz 10 év múlva is.
Látogass el hozzánk komáromi házgyárunkba vagy kecskeméti bemutató udvarunkba.
| Süti | Időtartam | Leírás |
|---|---|---|
| cookielawinfo-checkbox-analytics | 11 months | This cookie is set by GDPR Cookie Consent plugin. The cookie is used to store the user consent for the cookies in the category "Analytics". |
| cookielawinfo-checkbox-functional | 11 months | The cookie is set by GDPR cookie consent to record the user consent for the cookies in the category "Functional". |
| cookielawinfo-checkbox-necessary | 11 months | This cookie is set by GDPR Cookie Consent plugin. The cookies is used to store the user consent for the cookies in the category "Necessary". |
| cookielawinfo-checkbox-others | 11 months | This cookie is set by GDPR Cookie Consent plugin. The cookie is used to store the user consent for the cookies in the category "Other. |
| cookielawinfo-checkbox-performance | 11 months | This cookie is set by GDPR Cookie Consent plugin. The cookie is used to store the user consent for the cookies in the category "Performance". |
| viewed_cookie_policy | 11 months | The cookie is set by the GDPR Cookie Consent plugin and is used to store whether or not user has consented to the use of cookies. It does not store any personal data. |